Szerokość:
Długość
Wysokość:
Elewacja
Liczba osób:
Konstrukcja
Przestronny, całoroczny tiny house mobilny z dwiema antresolami sypialnianymi, pełnym wyposażeniem kuchennym oraz klimatyzacją WiFi. Idealne rozwiązanie dla rodzin lub grup do 6 osób, łączące maksymalną przestrzeń z mobilnością.
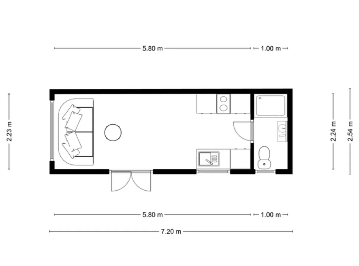
LINEAR to największy model w naszej ofercie tiny house mobilnych, zaprojektowany dla tych, którzy cenią sobie przestrzeń i funkcjonalność. Dzięki dwóm antresolom sypialnianym o powierzchni 7 m² każda, domek może komfortowo pomieścić do 6 osób, co czyni go idealnym rozwiązaniem zarówno dla większych rodzin, jak i na wynajem turystyczny.
Przestronny salon z w pełni wyposażonym aneksem kuchennym stanowi centralną część domku, a dwie antresole sypialniane zapewniają prywatność i komfort snu. Pełna łazienka z nowoczesną kabiną prysznicową FIBO i toaletą GEBERIT gwarantuje wygodę użytkowania.
Ogrzewanie podłogowe WiFi na całym parterze oraz klimatyzacja 2,7 kW z funkcją grzania, sterowane przez telefon, zapewniają komfort przez cały rok. Profesjonalna izolacja wełną mineralną 10 cm i płytami PIR gwarantuje doskonałe właściwości termiczne, umożliwiając całoroczne użytkowanie.
Ściany wewnętrzne z deski świerkowej 1,2 cm tworzą przytulne, naturalne wnętrze, a elewacja z drewna świerkowego w połączeniu z blachą na rąbek w kolorze czarny mat nadaje domkowi elegancki, nowoczesny wygląd.
LINEAR to idealne rozwiązanie dla osób poszukujących mobilnego domu, który nie wymaga pozwolenia na budowę, oferując jednocześnie przestrzeń i komfort porównywalne z tradycyjnym mieszkaniem.
Kuchnia:
Łazienka:
Instalacje:
| Parametr | Wartość |
|---|---|
| Szerokość | 2.55 m |
| Długość | 7.20 m |
| Wysokość | 4.00 m |
| Powierzchnia Parteru | 18 m² |
| Powierzchnia Antresoli | 14 m² |
| Liczba Osób | Do 6 osób |
Deska 2 cm - naturalny kolor
Wysoka trwałość - naturalny olej
Maksymalna trwałość - kolor ciemny
Nowoczesny - zero konserwacji
Wypełnij formularz, a nasz zespół skontaktuje się z Tobą w ciągu 24 godzin. Możesz też zadzwonić bezpośrednio – chętnie odpowiemy na wszystkie pytania i umówimy konsultację w dogodnym dla Ciebie terminie.