HAVEN – Domek Modułowy Stodoła

Nowoczesny domek modułowy w formie stodoły, zaprojektowany do całorocznego użytkowania. Charakterystyczna bryła z dachem dwuspadowym, naturalne drewno oraz czarna blacha na rąbek stojący tworzą elegancką, ponadczasową architekturę.

Szerokość:

3.2 m

Długość

9.3 m

Wysokość:

4.00 m

Elewacja

Deska świerkowa 2 cm, Termososna, Kompozyt

Liczba osób:

Do 4-6 osób

Konstrukcja

Konstrukcja drewniana klasy C24

Opis modelu

Nowoczesny domek modułowy w formie stodoły, zaprojektowany do całorocznego użytkowania. Charakterystyczna bryła z dachem dwuspadowym, naturalne drewno oraz czarna blacha na rąbek stojący tworzą elegancką, ponadczasową architekturę. Funkcjonalny układ z antresolą sypialnianą zapewnia wysoki komfort użytkowania oraz doskonałe warunki pod wynajem premium.

HAVEN to wyjątkowy domek modułowy, który łączy tradycyjną formę stodoły z nowoczesnym designem i najwyższym standardem wykończenia. Charakterystyczny dach dwuspadowy nadaje mu niepowtarzalny charakter, a łączna powierzchnia 37,2 m² (28,8 m² parter + 8,4 m² antresola) zapewnia komfortową przestrzeń dla całej rodziny.

Wnętrze domku zostało zaprojektowane z myślą o maksymalnej funkcjonalności. Przestronny salon płynnie przechodzi w w pełni wyposażony aneks kuchenny premium z czteropalnikową płytą indukcyjną, piekarnikiem z funkcją mikrofali i zmywarką. Antresola sypialniana o powierzchni 8,4 m² stanowi przytulną strefę wypoczynku.

Ogrzewanie podłogowe WiFi na całym parterze oraz klimatyzacja 2,7 kW z funkcją grzania gwarantują komfort przez cały rok. Profesjonalna izolacja wełną mineralną 10 cm i płytami PIR zapewnia doskonałe właściwości termiczne, a 8 punktów oświetlenia zewnętrznego LED podkreśla architektoniczny charakter budynku.

HAVEN to idealne rozwiązanie dla osób poszukujących charakterystycznego domku z duszą, który będzie świetnie funkcjonował zarówno jako prywatna przestrzeń wypoczynkowa, domek gościnny, jak i obiekt pod wynajem turystyczny premium.

Zdjęcia

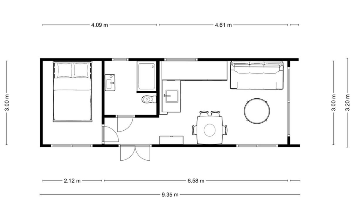
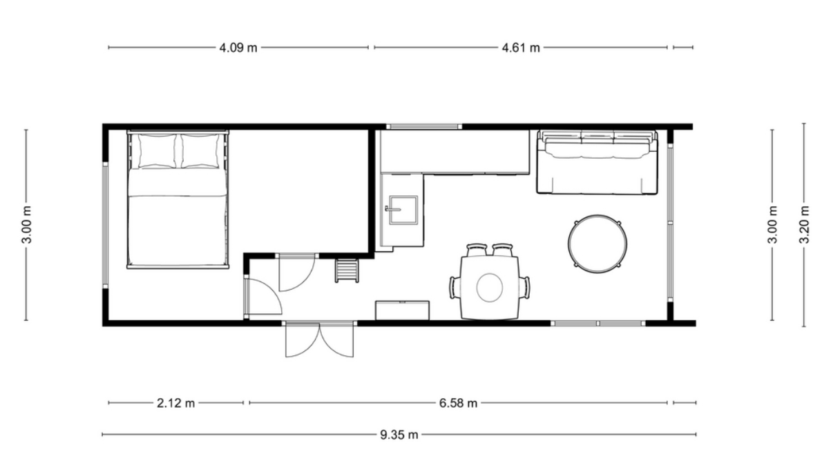
Rzuty

Rzut Parteru: 28.8 m²
Rzut Antresoli: 8.4 m²

Specyfikacja

Kuchnia:

  • Meble wykonane na wymiar
  • Lodówka z zamrażalnikiem
  • Piekarnik z funkcją mikrofali
  • Zmywarka
  • Płyta indukcyjna czteropalnikowa
  • Okap kuchenny
  • Zlew jednokomorowy
  • Oświetlenie LED

Łazienka:

  • Elektryczny podgrzewacz wody
  • Kabina prysznicowa 70 × 100 cm FIBO
  • Toaleta GEBERIT
  • Umywalka z szafką
  • Lustro LED
  • Wentylacja mechaniczna
  • Panele wodoodporne
  • Oświetlenie LED

Instalacje:

  • Instalacja wodna: PEX
  • Instalacja elektryczna: 230 V
  • Instalacja kanalizacyjna: 110/50

Wymiary & Specyfikacja

Parametr Wartość
Szerokość 3.2 m
Długość 9.3 m
Wysokość 4.00 m
Powierzchnia Parteru 28.8 m²
Powierzchnia Antresoli 8.4 m²
Liczba Osób Do 4-6 osób

Konstrukcja i Izolacja

Specyfikacja Sauny

Konstrukcja

  • Blacha na rąbek stojący
  • Elewacja świerk skandynawski 2 cm
  • Opcje: modrzew, termososna, kompozyt
  • Konstrukcja całoroczna

Przeszklenie

  • Okna PCV dwuszybowe
  • Drzwi przeszklone
  • Wysokiej jakości szkło hartowane
  • Maksymalne doświetlenie

Elewacja i Dach

  • Deska świerkowa 2 cm (standard)
  • Blacha na rąbek stojący
  • Opcje premium: modrzew, termososna
  • Nowoczesny kompozyt

Wnętrze

  • Wnętrze świerk skandynawski
  • Ławki drewno Abachi
  • Opcje: termososna, osika
  • Piec elektryczny lub na drewno

Opcje Wykończenia Elewacji

Standard

Świerk Skandynawski

Deska 2 cm - naturalny kolor

Premium

Modrzew

Wysoka trwałość - naturalny olej

Premium

Termososna

Maksymalna trwałość - kolor ciemny

Premium

Kompozyt

Nowoczesny - zero konserwacji

Kontakt

NAPISZ DO NAS

Odpowiemy w Ciągu 24 Godzin

Wypełnij formularz, a nasz zespół skontaktuje się z Tobą w ciągu 24 godzin. Możesz też zadzwonić bezpośrednio – chętnie odpowiemy na wszystkie pytania i umówimy konsultację w dogodnym dla Ciebie terminie.

Germany Switzerland Austria
Germany + Switzerland + Austria
017682458580
Slovakia Czech Republic
Slovakia + Czech Republic
+421 904 590 963